![]() |
|
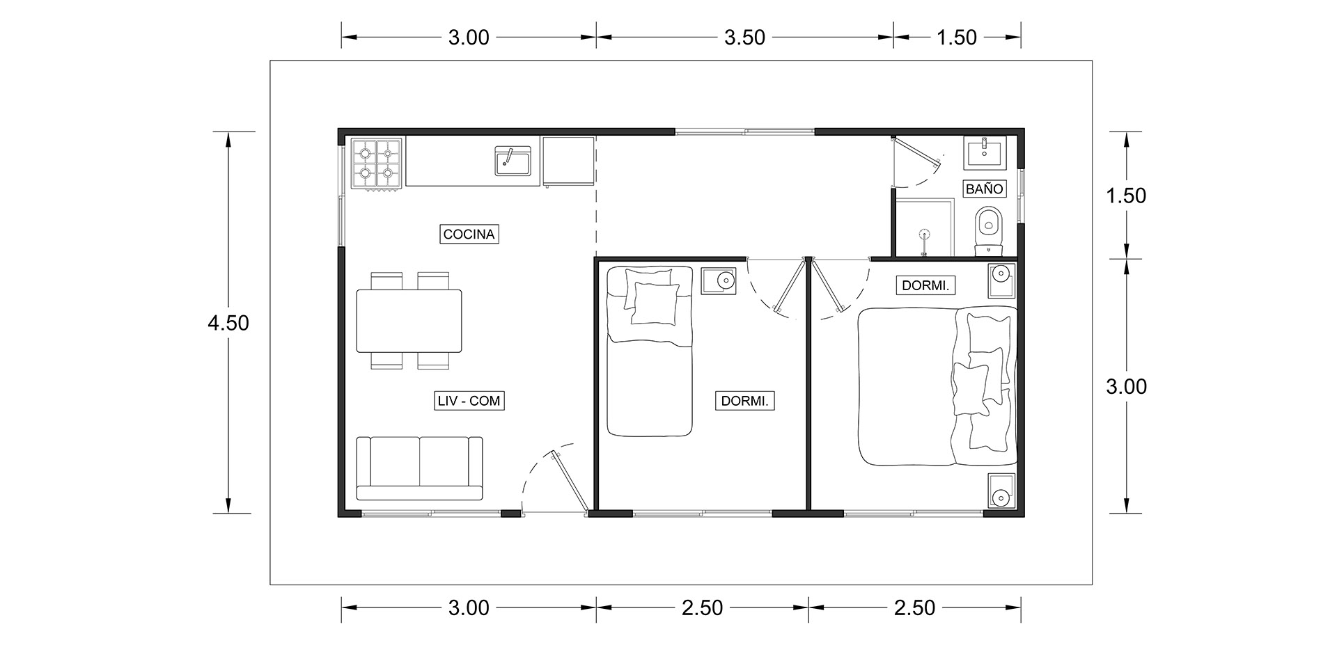
MODELO LIMA 3600 |
Las imágenes mostradas son ilustrativas.
CONTADO DE LISTA:
$14.933.685
CONTADO OFERTA:
$13.846.513
(en un solo pago)
Anticipo $10.453.580
y 20 cuotas de $672.016
Adicional por instalación en terraza 10%
TECHO:
Chapa galvanizada cal 27 acanalada natural
EXTERIOR: en placas cementicias.
INTERIOR: cielorraso y divisiones en placas de roca
de yeso.
VENTANAS: aluminio blanco corredizas con vidrios y
burletes.
PUERTAS: de entrada reforzado y puertas placa en
interiores.
INSTALACIONES: panel sanitario para instalación de agua fría y
caliente en baño. Caños y cajas para
instalación de luz. (sin cables ni llaves)
Incluida la realización de contrapiso
(mano de obra solamente, materiales a cargo del cliente comprador).
Flete y armado sin cargo hasta 100 Km del Punto de Venta (consultar costos por distancia mayor)
Av. Intendente Jorge R. Varela 1103
(Ex av. Rivadavia).
Teléfono: 03489-468877
Teléfono: 03489-427072