![]() |
|
MODELO INVERSIÓN 2026 PROMOCIÓN 3 CASAS |
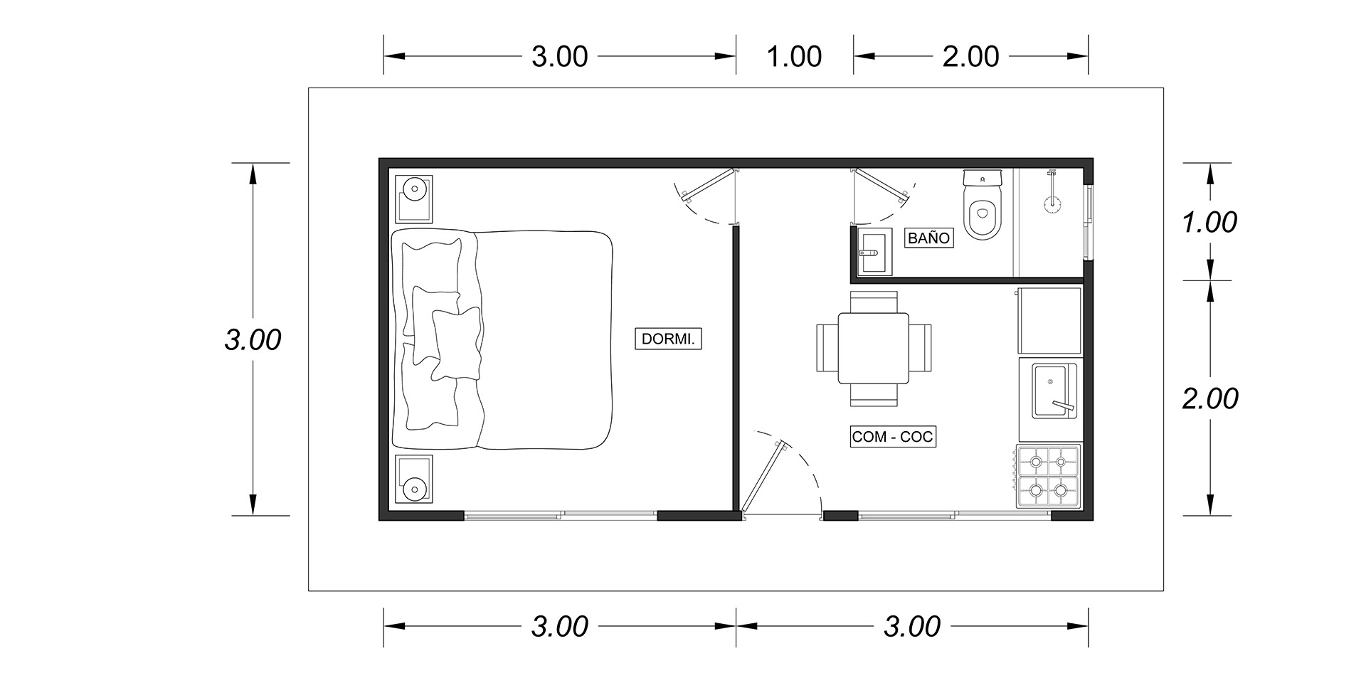
Las imágenes mostradas son ilustrativas.
3 CASAS POR:
CONTADO DE LISTA:
$19.550.000
CONTADO OFERTA:
$18.132.210
(en un solo pago)
Adicional por instalación en terraza 10%
TECHO: Chapa galvanizada cal. 27
PUERTAS: Frente doble chapa reforzada. Puerta de baño y habitación placa.
EXTERIOR: En placas cementicias (superboard).
INTERIOR: Roca de yeso (atornilladas).
VENTANAS: Aluminio blanco con vidrio.
INSTALACIONES: Panel sanitario para agua fría y caliente y cajas para instalación de luz.
Se entregan tres casas.
Incluida la realización de contrapiso. (mano de obra solamente, materiales a cargo del cliente comprador).
Flete y armado sin cargo hasta 50 Kms. del Punto de Venta (consultar costos por distancia mayor)
10% adicional por instalación en terrazas.
Av. Intendente Jorge R. Varela 1103
(Ex av. Rivadavia).
Teléfono: 03489-468877
Teléfono: 03489-427072