![]() |
|
MODELO ARECO MINI |
Las imágenes mostradas son ilustrativas.
CONTADO DE LISTA:
$13.833.309
CONTADO OFERTA:
$12.826.244
(en un solo pago)
Anticipo $9.683.316
y 20 cuotas de $580.999
Adicional por instalación en terraza 10%
Areco Mini 1
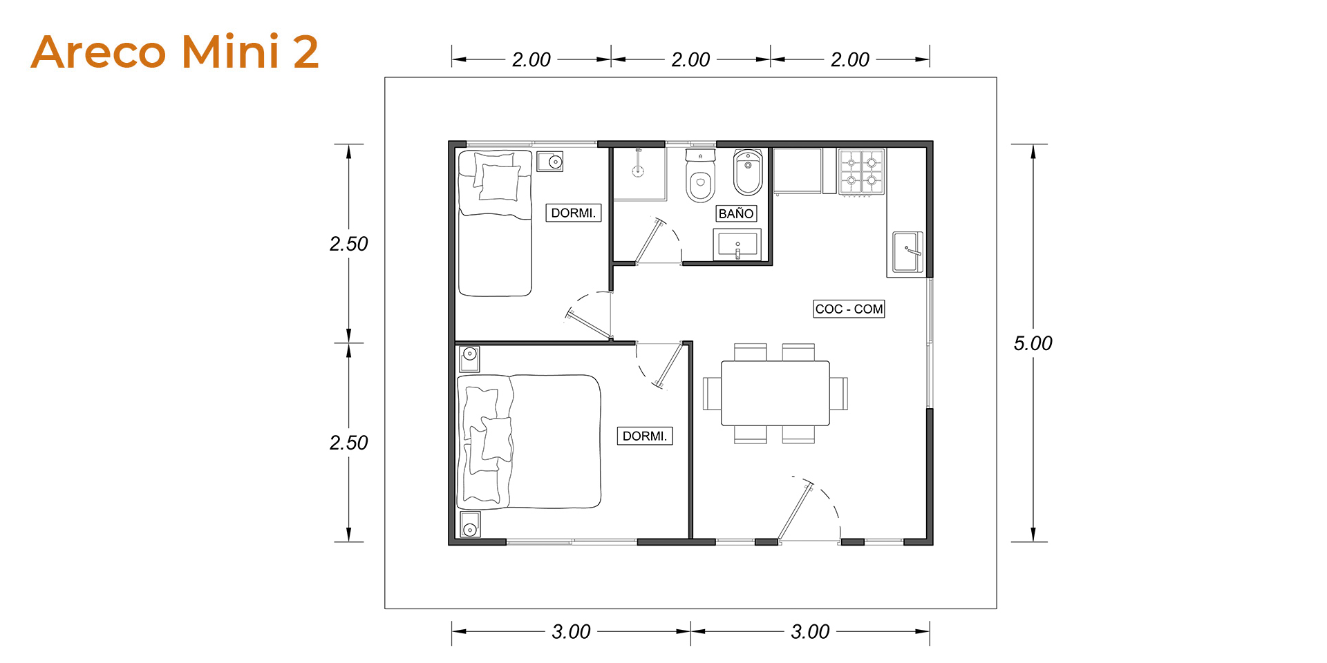
Areco Mini 2
CUBIERTA DE TECHO: Chapa galvanizada Cal.27 Natural acanalada.
PANELES EXTERIORES: Revestidos con placas cementicias aptas para cualquier tipo de revestimiento o terminación.
AISLANTES: Espuma de polietileno aluminizado de 10mm en todas las paredes perimetrales y cielorraso.
CIELORRASO: Revestido en placas de roca de yeso.
PANELES INTERIORES: Revestidos en placa de roca de yeso, tanto en las perimetrales como en las divisiones de los
ambientes.
VENTANAS: En aluminio blanco corredizas a dos hojas con vidrios y burletes con tapa premarcos (Premium).
PUERTAS: Puerta de entrada doble chapa reforzada. Puertas interiores placas de 0.70 x 2.00mts.
INSTALACIÓN ELÉCTRICA: Se preinstalará dentro de los paneles el circuito compuesto por los caños conductores de
los cables y las respectivas cajas para interruptores y tomas de luz sin cables ni accesorios.
- Flete y armado sin cargo desde el punto de venta.
- Incluida la realización de contrapiso hasta 70 Km. del punto de venta
   (consultar costos por distancia mayor).
- Panel sanitario para la instalación de agua fría y caliente en baño.
Av. Intendente Jorge R. Varela 1103
(Ex av. Rivadavia).
Teléfono: 03489-468877
Teléfono: 03489-427072