(terminaciones funcionales)

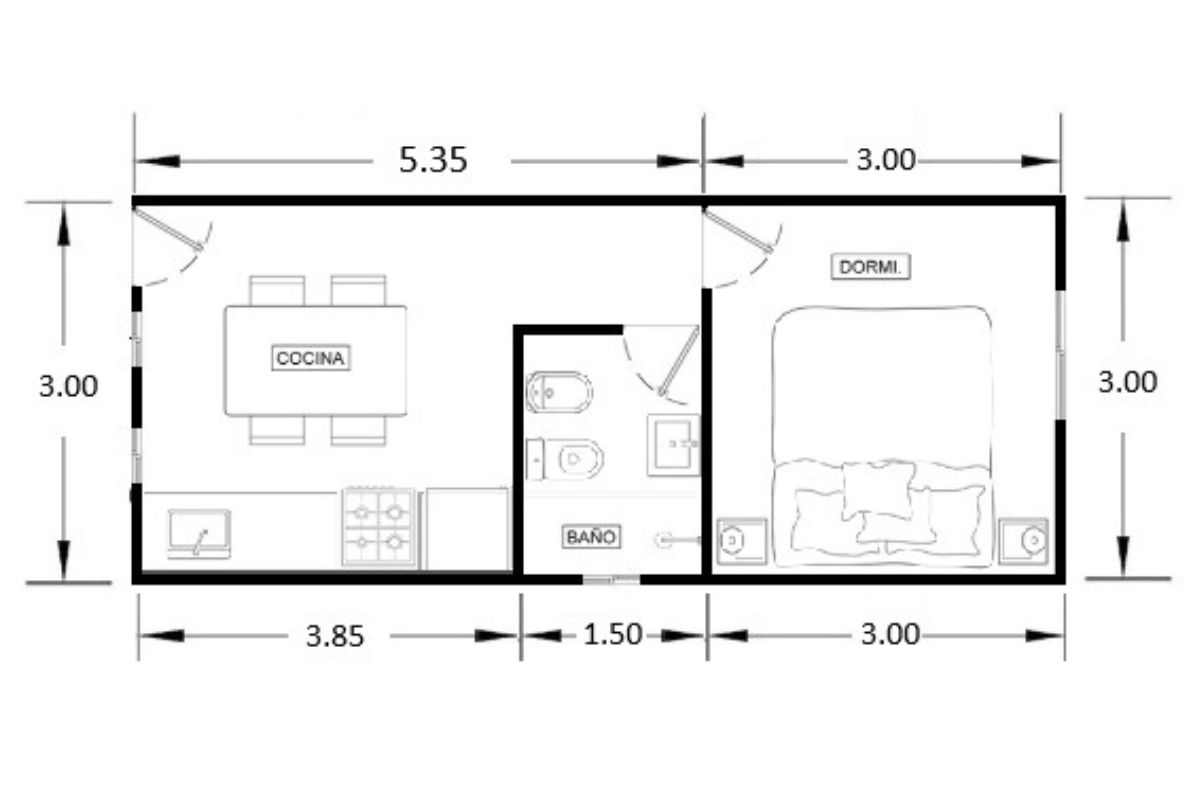
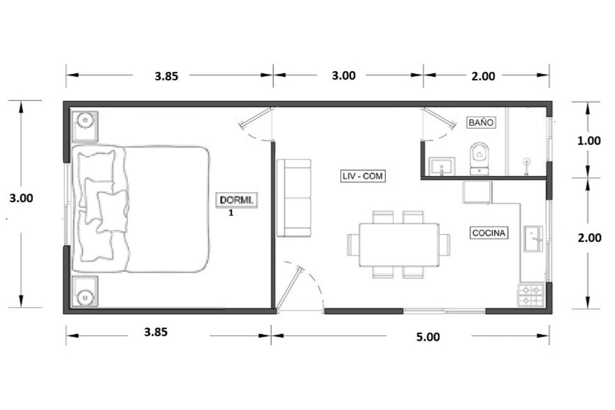
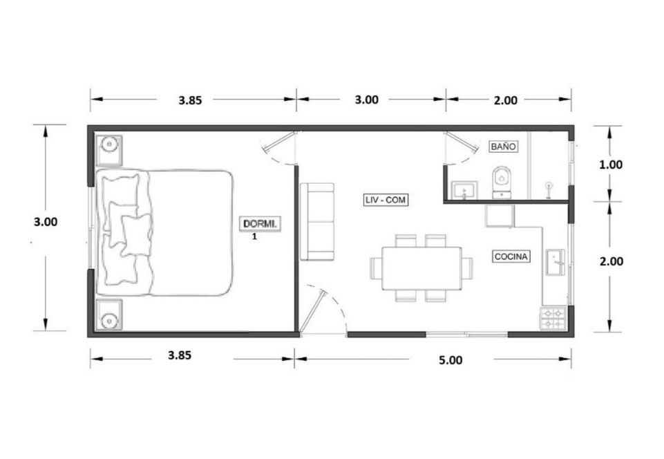
Las imágenes mostradas son ilustrativas.
Ficha Técnica
CUBIERTA DE TECHO: Chapa galvanizada Cal.27 natural acanalada.
PANELES EXTERIORES: Revestidos con placas cementicias (Superboard) aptas para cualquier tipo de revestimiento o terminación.
AISLANTES: Lana de vidrio en todas las paredes perimetrales y cielorraso con barrera de viento y agua marca (Wichi) o similar.
CIELORRASO: Revestido en placas de roca de yeso.
PANELES INTERIORES: Revestidos en placa de roca de yeso, tanto en las perimetrales como en las divisiones de los ambientes.
VENTANAS: En aluminio blanco corredizas a dos hojas con vidrios y burletes con tapa premarcos (Premium).
PUERTAS: Puerta de entrada inyectada con barral. Puertas interiores placas de 0.70 x 2.00mts.
BAÑO: Revestido con placas de roca de yeso antihumedad.
INSTALACIÓN ELÉCTRICA: Se preinstalará dentro de los paneles el circuito compuesto por los caños conductores de los cables
y las respectivas cajas para interruptores y tomas de luz. (Sin cables ni accesorios).
INSTALACIÓN DE PLOMERÍA: (Mano de obra SIN materiales). Instalación de agua fría y caliente con sistema de termofusión
en cocina, baño y una salida de termotanque. Colocación de caños de desagües en cocina y baño hasta el borde de la platea.
CONDICIONES DE ENTREGA: (MANO DE OBRA SIN MATERIALES) Contrapiso/Platea, carpeta niveladora, selladora e hidrófuga en toda la superficie de la vivienda,
Colocación de cerámicos en todo el interior de la vivienda, Baño terminado, colocación de azulejos en el baño, colocación de accesorios de baño con sus respectivas griferias.
IMPORTANTE:
Flete, armado y mano de obra de contrapiso e instalación de plomería incluidos hasta 50km desde el punto
de venta. Por más Kilómetros consultar.
Imágenes Ilustrativas
VIVIENDAS CAMPANA
Av. Intendente Jorge R. Varela 1103
(Ex Av. Rivadavia).